Top.Mail.Ru

улица Архитектора Власова, д. 13, к. 4

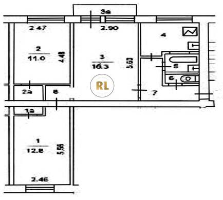
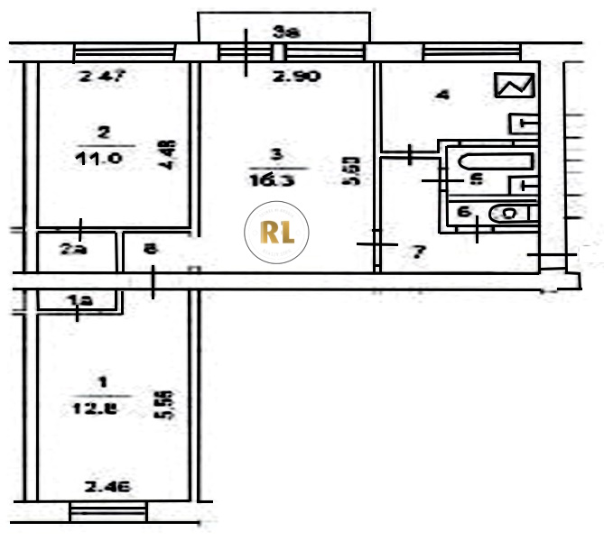
База каталог, Кол-во подъездов: 4, I-511, Москва, Черемушки, Площадь парковки: 0, Пассажирский лифт: 0, От метро: 490, Юго-Западный, нет, Наименьшее кол-во этажей: 5, Наибольшее кол-во этажей: 5, Профсоюзная, Кол-во помещений: 80, Кол-во нежилых помещений: 0, Год ввода в эксплуатацию: 1960, 3-комн, Кол-во жилых помещений: 80, Не присвоен, дом 13, корпус 4, да, да, да, да, да, да, Грузовых лифтов: 0, Год постройки: 1960, улица Архитектора Власова, 37.555301, 55.677458
Свяжитесь со мной на счет цены
10 дн.
T55S677458L37S555301T

На карте


Условия сделки

Источник


Старт продаж

Возможно заинтересует