Top.Mail.Ru

Профсоюзная ул., д. 30, к. 2

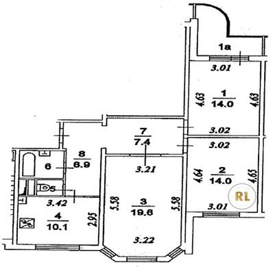
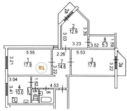
База каталог, Кол-во подъездов: 2, П-3M, Москва, Черемушки, Площадь парковки: 0, Пассажирский лифт: 2, От метро: 151, Юго-Западный, нет, Наименьшее кол-во этажей: 17, Наибольшее кол-во этажей: 17, Профсоюзная, Кол-во помещений: 132, Кол-во нежилых помещений: 4, Год ввода в эксплуатацию: 2004, 3-комн, Кол-во жилых помещений: 128, Не присвоен, дом 30, корпус 2, да, да, да, да, да, да, Грузовых лифтов: 2, Год постройки: 2004, Профсоюзная улица, 37.560493, 55.677783
Свяжитесь со мной на счет цены
10 дн.
T55S677783L37S560493T

На карте


Условия сделки

Источник


Старт продаж

Возможно заинтересует