Top.Mail.Ru

Краснодарская ул., д. 23

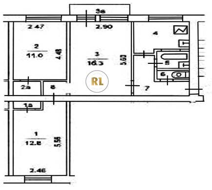
База каталог, Кол-во подъездов: 4, Отсутствует, I-511, Москва, Люблино, Пассажирский лифт: 0, От метро: 720, Юго-Восточный, да, Наименьшее кол-во этажей: 0, Наибольшее кол-во этажей: 5, Люблино, Кол-во помещений: 80, Кол-во нежилых помещений: 0, Год ввода в эксплуатацию: 1960, 3-комн, Кол-во жилых помещений: 80, дом 23, нет, да, да, да, да, да, Имеется, Грузовых лифтов: 0, Год постройки: 1960, Краснодарская улица, 37.751592, 55.677986
Свяжитесь со мной на счет цены
10 дн.
T55S677986L37S751592T

На карте


Условия сделки

Источник


Старт продаж

Возможно заинтересует