Top.Mail.Ru

Тихорецкий бульвар, д. 14, к. 2

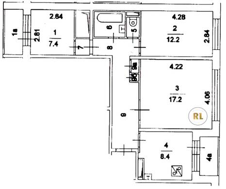
База каталог, Кол-во подъездов: 4, П-30, Москва, Люблино, Пассажирский лифт: 8, От метро: 620, Юго-Восточный, да, Наименьшее кол-во этажей: 0, Наибольшее кол-во этажей: 12, Люблино, Кол-во помещений: 187, Кол-во нежилых помещений: 0, Год ввода в эксплуатацию: 1979, 3-комн, Кол-во жилых помещений: 187, дом 14, корпус 2, нет, да, да, да, да, да, Имеется, Грузовых лифтов: 0, Год постройки: 1979, Тихорецкий бульвар, 37.770735, 55.678128
15 750 000 Р
10 дн.
T55S678128L37S770735T
+

На карте


Условия сделки

Источник


Старт продаж