Top.Mail.Ru

Люблинская ул., д. 113, к. 3

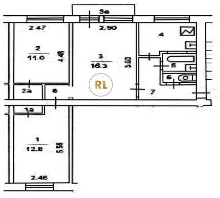
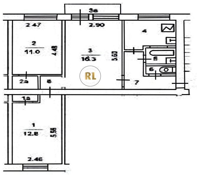
База каталог, Кол-во подъездов: 7, Имеется, I-511, Москва, Люблино, Пассажирский лифт: 0, От метро: 1480, Юго-Восточный, да, Наименьшее кол-во этажей: 0, Наибольшее кол-во этажей: 5, Люблино, Кол-во помещений: 139, Кол-во нежилых помещений: 0, Год ввода в эксплуатацию: 1970, 3-комн, Кол-во жилых помещений: 139, дом 113, корпус 3, нет, да, да, да, да, нет, Имеется, Грузовых лифтов: 0, Год постройки: 1970, Люблинская улица, 37.741100, 55.678443
Свяжитесь со мной на счет цены
10 дн.
T55S678443L37S741100T

На карте


Условия сделки

Источник


Старт продаж

Возможно заинтересует