Top.Mail.Ru

Нахимовский проспект, д. 61, к. 1

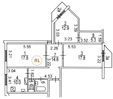
База каталог, Кол-во подъездов: 2, П-3M, Москва, Черемушки, Площадь парковки: 0, Пассажирский лифт: 2, От метро: 268, Юго-Западный, нет, Наименьшее кол-во этажей: 17, Наибольшее кол-во этажей: 17, Профсоюзная, Кол-во помещений: 136, Кол-во нежилых помещений: 0, Год ввода в эксплуатацию: 2003, 3-комн, Кол-во жилых помещений: 136, Не присвоен, дом 61, корпус 1, да, да, да, да, да, да, Грузовых лифтов: 2, Год постройки: 2003, Нахимовский проспект, 37.559146, 55.678585
Свяжитесь со мной на счет цены
10 дн.
T55S678585L37S559146T

На карте


Условия сделки

Источник


Старт продаж

Возможно заинтересует