Top.Mail.Ru

Нахимовский проспект, д. 63, к. 3

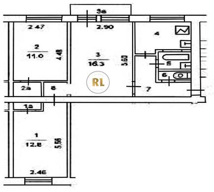
База каталог, Кол-во подъездов: 4, I-511, Москва, Черемушки, Площадь парковки: 0, Пассажирский лифт: 0, От метро: 430, Юго-Западный, нет, Наименьшее кол-во этажей: 5, Наибольшее кол-во этажей: 5, Профсоюзная, Кол-во помещений: 80, Кол-во нежилых помещений: 0, Год ввода в эксплуатацию: 1960, 3-комн, Кол-во жилых помещений: 80, Не присвоен, дом 63, корпус 3, да, да, да, да, да, да, Грузовых лифтов: 0, Год постройки: 1960, Нахимовский проспект, 37.556604, 55.678717
Свяжитесь со мной на счет цены
10 дн.
T55S678717L37S556604T

На карте


Условия сделки

Источник


Старт продаж

Возможно заинтересует