Top.Mail.Ru

проспект 40 лет Октября, д. 16, к. 2

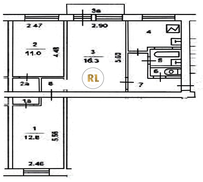
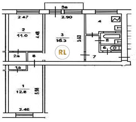
База каталог, Кол-во подъездов: 4, I-511, Москва, Люблино, Пассажирский лифт: 0, От метро: 1300, Юго-Восточный, да, Наименьшее кол-во этажей: 0, Наибольшее кол-во этажей: 5, Люблино, Кол-во помещений: 80, Кол-во нежилых помещений: 0, Год ввода в эксплуатацию: 1968, 3-комн, Кол-во жилых помещений: 80, дом 16, корпус 2, нет, да, да, да, да, нет, Имеется, Грузовых лифтов: 0, Год постройки: 1968, проспект 40 лет Октября, 37.743723, 55.678905
Свяжитесь со мной на счет цены
10 дн.
T55S678905L37S743723T

На карте


Условия сделки

Источник


Старт продаж

Возможно заинтересует