Top.Mail.Ru

Нагорная ул., д. 15, к. 4

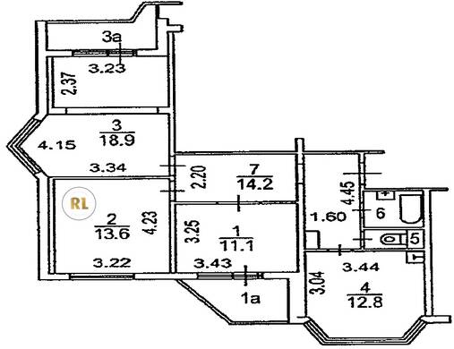
База каталог, Кол-во подъездов: 2, П-44T, Москва, Котловка, Пассажирский лифт: 2, От метро: 1160, Юго-Западный, да, Наименьшее кол-во этажей: 14, Наибольшее кол-во этажей: 14, Нагорная, Кол-во помещений: 108, Кол-во нежилых помещений: 1, Год ввода в эксплуатацию: 2007, 3-комн, Кол-во жилых помещений: 107, E, дом 15, корпус 4, нет, да, да, да, да, нет, Грузовых лифтов: 2, Год постройки: 2007, Нагорная улица, 37.607619, 55.678981
Свяжитесь со мной на счет цены
10 дн.
T55S678981L37S607619T

На карте


Условия сделки

Источник


Старт продаж

Возможно заинтересует