Top.Mail.Ru

Привольная ул., д. 73, к. 1

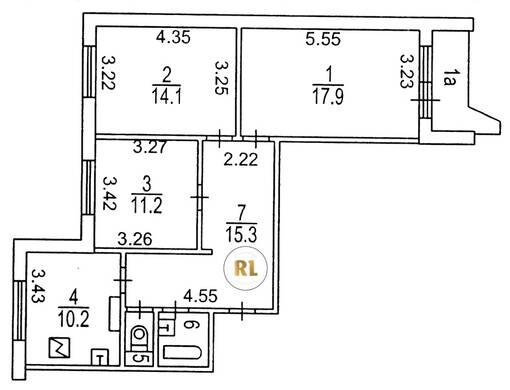
База каталог, Кол-во подъездов: 6, Имеется, П-44, Москва, Выхино-Жулебино, Площадь парковки: 0, Пассажирский лифт: 6, От метро: 490, Юго-Восточный, нет, Наименьшее кол-во этажей: 1, Наибольшее кол-во этажей: 12, Котельники, Кол-во помещений: 281, Кол-во нежилых помещений: 6, Год ввода в эксплуатацию: 1997, 3-комн, Кол-во жилых помещений: 275, Не присвоен, дом 73, корпус 1, да, да, да, да, да, да, Имеется, Грузовых лифтов: 6, Год постройки: 1997, Привольная улица, 37.853964, 55.679128
Свяжитесь со мной на счет цены
10 дн.
T55S679128L37S853964T

На карте


Условия сделки

Источник


Старт продаж

Возможно заинтересует