Top.Mail.Ru

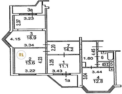
Краснодонская ул., д. 21, к. 1

База каталог, Кол-во подъездов: 2, Отсутствует, П-44T, Москва, Люблино, Пассажирский лифт: 0, От метро: 930, Юго-Восточный, да, Наименьшее кол-во этажей: 0, Наибольшее кол-во этажей: 0, Люблино, Кол-во помещений: 0, Кол-во нежилых помещений: 0, Год ввода в эксплуатацию: 2004, 3-комн, Кол-во жилых помещений: 0, дом 21, корпус 1, нет, да, да, да, да, да, Имеется, Грузовых лифтов: 0, Год постройки: 2004, Краснодонская улица, 37.750020, 55.679590
Свяжитесь со мной на счет цены
10 дн.
T55S679590L37S750020T

На карте


Условия сделки

Источник


Старт продаж

Возможно заинтересует