Top.Mail.Ru

Новороссийская ул., д. 5, к. 2

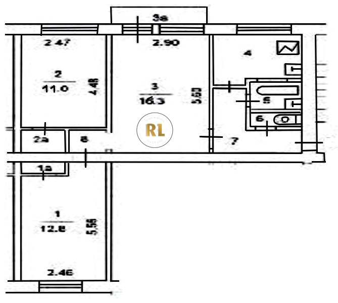
База каталог, Кол-во подъездов: 4, Отсутствует, I-511, Москва, Люблино, Пассажирский лифт: 0, От метро: 410, Юго-Восточный, да, Наименьшее кол-во этажей: 0, Наибольшее кол-во этажей: 5, Люблино, Кол-во помещений: 80, Кол-во нежилых помещений: 0, Год ввода в эксплуатацию: 1962, 3-комн, Кол-во жилых помещений: 80, дом 5, корпус 2, да, да, да, да, да, да, Имеется, Грузовых лифтов: 0, Год постройки: 1962, Новороссийская улица, 37.761411, 55.679681
Свяжитесь со мной на счет цены
10 дн.
T55S679681L37S761411T

На карте


Условия сделки

Источник


Старт продаж

Возможно заинтересует