Top.Mail.Ru

Новороссийская ул., д. 5, к. 1

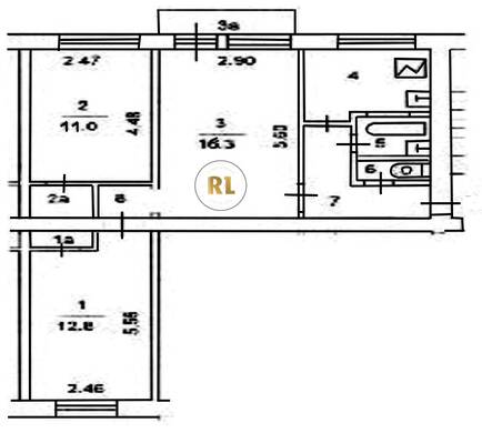
База каталог, Кол-во подъездов: 4, Имеется, I-511, Москва, Люблино, Пассажирский лифт: 0, От метро: 410, Юго-Восточный, да, Наименьшее кол-во этажей: 0, Наибольшее кол-во этажей: 5, Люблино, Кол-во помещений: 80, Кол-во нежилых помещений: 0, Год ввода в эксплуатацию: 1962, 3-комн, Кол-во жилых помещений: 80, дом 5, корпус 1, да, да, да, да, да, да, Отсутствует, Грузовых лифтов: 0, Год постройки: 1962, Новороссийская улица, 37.760719, 55.679773
Свяжитесь со мной на счет цены
10 дн.
T55S679773L37S760719T

На карте


Условия сделки

Источник


Старт продаж

Возможно заинтересует