Top.Mail.Ru

Высокая ул., д. 12

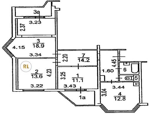
База каталог, Кол-во подъездов: 6, П-44T, Москва, Нагатино-Садовники, Площадь парковки: 0, Пассажирский лифт: 6, От метро: 2120, Южный, нет, Наименьшее кол-во этажей: 17, Наибольшее кол-во этажей: 17, Кленовый бульвар, Кол-во помещений: 406, Кол-во нежилых помещений: 17, Год ввода в эксплуатацию: 2003, 3-комн, Кол-во жилых помещений: 389, дом 12, нет, да, да, нет, нет, нет, Имеется, Грузовых лифтов: 6, Год постройки: 2003, Высокая улица, 37.657314, 55.679849
Свяжитесь со мной на счет цены
10 дн.
T55S679849L37S657314T

На карте


Условия сделки

Источник


Старт продаж

Возможно заинтересует