Top.Mail.Ru

Нахимовский проспект, д. 67, к. 4

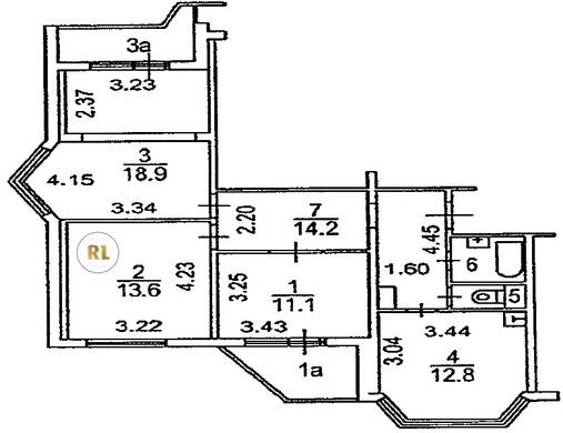
База каталог, Кол-во подъездов: 2, П-44T, Москва, Черемушки, Площадь парковки: 0, Пассажирский лифт: 2, От метро: 580, Юго-Западный, нет, Наименьшее кол-во этажей: 17, Наибольшее кол-во этажей: 17, Профсоюзная, Кол-во помещений: 127, Кол-во нежилых помещений: 2, Год ввода в эксплуатацию: 2010, 3-комн, Кол-во жилых помещений: 125, Не присвоен, дом 67, корпус 4, да, да, да, да, да, да, Грузовых лифтов: 2, Год постройки: 2010, Нахимовский проспект, 37.555696, 55.680123
Свяжитесь со мной на счет цены
10 дн.
T55S680123L37S555696T

На карте


Условия сделки

Источник


Старт продаж

Возможно заинтересует