Top.Mail.Ru

Коломенская ул., д. 9

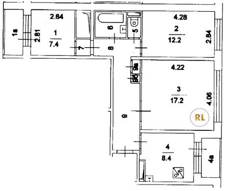
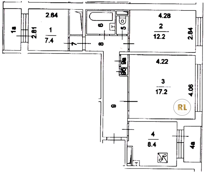
База каталог, Кол-во подъездов: 17, Имеется, П-30, Москва, Нагатинский Затон, Площадь парковки: 0, Пассажирский лифт: 34, От метро: 600, Южный, нет, Наименьшее кол-во этажей: 12, Наибольшее кол-во этажей: 12, Нагатинский Затон, Кол-во помещений: 809, Кол-во нежилых помещений: 5, Год ввода в эксплуатацию: 1983, 3-комн, Кол-во жилых помещений: 804, С, дом 9, нет, да, да, да, да, да, Имеется, Грузовых лифтов: 0, Год постройки: 1983, Коломенская улица, 37.701753, 55.680194
Свяжитесь со мной на счет цены
10 дн.
T55S680194L37S701753T

На карте


Условия сделки

Источник


Старт продаж

Возможно заинтересует