Top.Mail.Ru

Таганрогская ул., д. 12

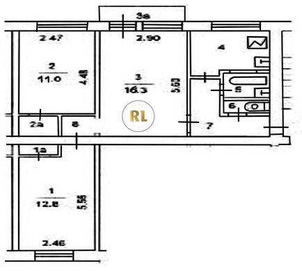
База каталог, Кол-во подъездов: 4, I-511, Москва, Люблино, Пассажирский лифт: 0, От метро: 800, Юго-Восточный, да, Наименьшее кол-во этажей: 0, Наибольшее кол-во этажей: 5, Люблино, Кол-во помещений: 80, Кол-во нежилых помещений: 0, Год ввода в эксплуатацию: 1967, 3-комн, Кол-во жилых помещений: 80, дом 12, нет, да, да, да, да, да, Имеется, Грузовых лифтов: 0, Год постройки: 1967, Таганрогская улица, 37.754080, 55.680194
Свяжитесь со мной на счет цены
10 дн.
T55S680194L37S754080T

На карте


Условия сделки

Источник


Старт продаж

Возможно заинтересует