Top.Mail.Ru

Ставропольская ул., д. 8

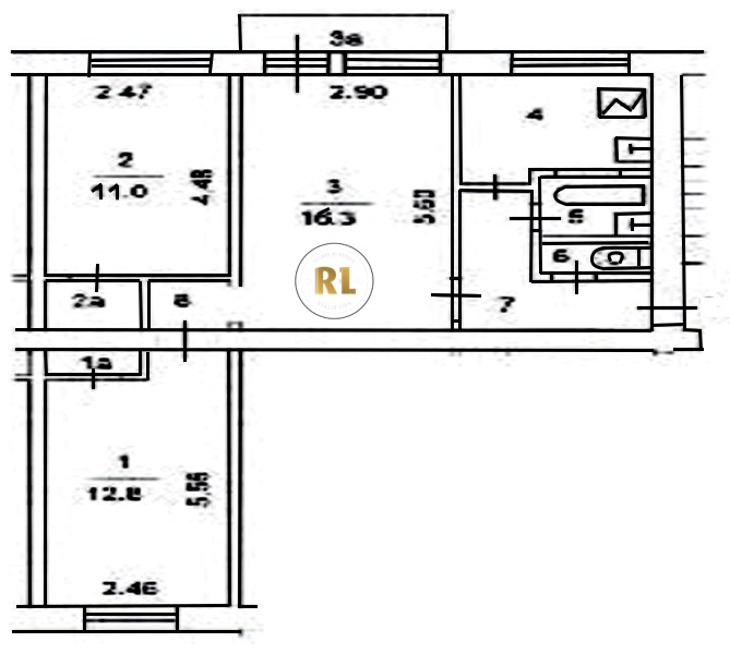
База каталог, Кол-во подъездов: 3, Отсутствует, I-511, Москва, Люблино, Пассажирский лифт: 0, От метро: 1510, Юго-Восточный, да, Наименьшее кол-во этажей: 0, Наибольшее кол-во этажей: 5, Люблино, Кол-во помещений: 60, Кол-во нежилых помещений: 0, Год ввода в эксплуатацию: 1961, 3-комн, Кол-во жилых помещений: 60, дом 8, нет, да, да, да, да, нет, Имеется, Грузовых лифтов: 0, Год постройки: 1961, Ставропольская улица, 37.743157, 55.680230
Свяжитесь со мной на счет цены
10 дн.
T55S680230L37S743157T

На карте


Условия сделки

Источник


Старт продаж

Возможно заинтересует