Top.Mail.Ru

Нагорная ул., д. 16, к. 2

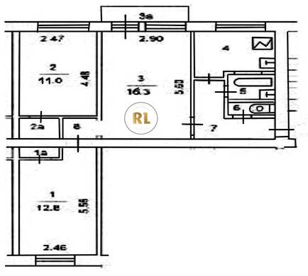
База каталог, Кол-во подъездов: 4, I-511, Москва, Котловка, Площадь парковки: 0, Пассажирский лифт: 0, От метро: 1460, Юго-Западный, нет, Наименьшее кол-во этажей: 5, Наибольшее кол-во этажей: 5, Крымская, Кол-во помещений: 80, Кол-во нежилых помещений: 0, Год ввода в эксплуатацию: 1965, 3-комн, Кол-во жилых помещений: 80, E, дом 16, корпус 2, нет, да, да, да, да, нет, Грузовых лифтов: 0, Год постройки: 1965, Нагорная улица, 37.605131, 55.680894
Свяжитесь со мной на счет цены
10 дн.
T55S680894L37S605131T

На карте


Условия сделки

Источник


Старт продаж

Возможно заинтересует