Top.Mail.Ru

улица Наташи Ковшовой, д. 17

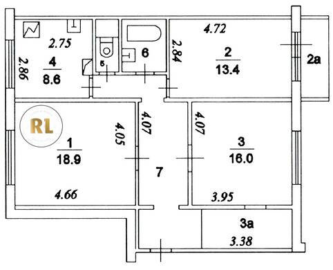
База каталог, Кол-во подъездов: 4, Отсутствует, П-46M, Москва, Очаково-Матвеевское, Площадь парковки: 0, Пассажирский лифт: 4, От метро: 1300, Западный, нет, Наименьшее кол-во этажей: 1, Наибольшее кол-во этажей: 14, Озёрная, Кол-во помещений: 0, Кол-во нежилых помещений: 0, Год ввода в эксплуатацию: 2002, 3-комн, Кол-во жилых помещений: 0, Не присвоен, дом 17, нет, да, да, да, да, нет, Имеется, Грузовых лифтов: 4, Год постройки: 2002, улица Наташи Ковшовой, 37.449785, 55.680955
Свяжитесь со мной на счет цены
10 дн.
T55S680955L37S449785T

На карте


Условия сделки

Источник


Старт продаж

Возможно заинтересует