Top.Mail.Ru

Ставропольская ул., д. 64, к. 1

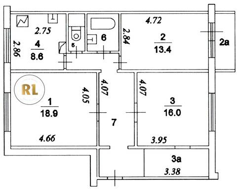
База каталог, Кол-во подъездов: 2, Отсутствует, П-46, Москва, Люблино, Пассажирский лифт: 4, От метро: 990, Юго-Восточный, да, Наименьшее кол-во этажей: 0, Наибольшее кол-во этажей: 14, Люблино, Кол-во помещений: 111, Кол-во нежилых помещений: 0, Год ввода в эксплуатацию: 1986, 3-комн, Кол-во жилых помещений: 111, дом 64, корпус 1, нет, да, да, да, да, да, Имеется, Грузовых лифтов: 0, Год постройки: 1986, Ставропольская улица, 37.773349, 55.680996
Свяжитесь со мной на счет цены
10 дн.
T55S680996L37S773349T

На карте


Условия сделки

Источник


Старт продаж

Возможно заинтересует