Top.Mail.Ru

Большая Черемушкинская ул., д. 24, к. 1

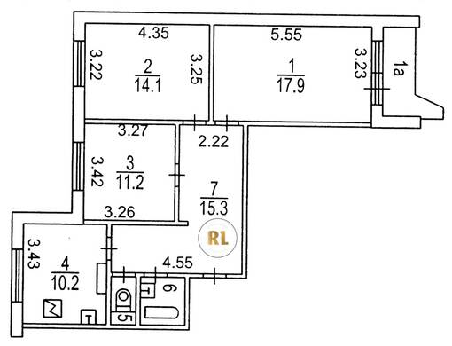
База каталог, Кол-во подъездов: 3, Отсутствует, П-44, Москва, Академический, Площадь парковки: 0, Пассажирский лифт: 3, От метро: 1270, Юго-Западный, нет, Наименьшее кол-во этажей: 17, Наибольшее кол-во этажей: 17, Академическая, Кол-во помещений: 199, Кол-во нежилых помещений: 0, Год ввода в эксплуатацию: 1984, 3-комн, Кол-во жилых помещений: 199, D, дом 24, корпус 1, нет, да, да, да, да, нет, Имеется, Грузовых лифтов: 3, Год постройки: 1984, Большая Черемушкинская улица, 37.587308, 55.681163
Свяжитесь со мной на счет цены
10 дн.
T55S681163L37S587308T

На карте


Условия сделки

Источник


Старт продаж

Возможно заинтересует