Top.Mail.Ru

Нагорная ул., д. 16, к. 3

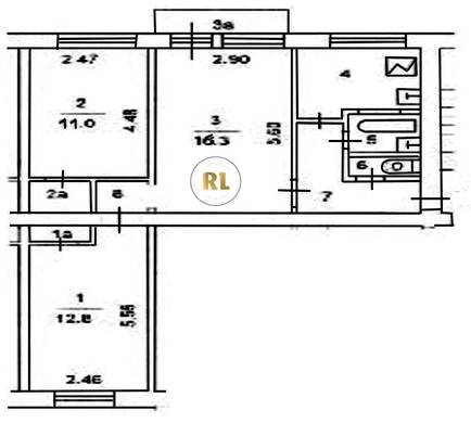
База каталог, Кол-во подъездов: 3, I-511, Москва, Котловка, Площадь парковки: 0, Пассажирский лифт: 0, От метро: 1390, Юго-Западный, нет, Наименьшее кол-во этажей: 5, Наибольшее кол-во этажей: 5, Крымская, Кол-во помещений: 49, Кол-во нежилых помещений: 1, Год ввода в эксплуатацию: 1971, 3-комн, Кол-во жилых помещений: 48, E, дом 16, корпус 3, нет, да, да, да, да, нет, Грузовых лифтов: 0, Год постройки: 1971, Нагорная улица, 37.604583, 55.681463
Свяжитесь со мной на счет цены
10 дн.
T55S681463L37S604583T

На карте


Условия сделки

Источник


Старт продаж

Возможно заинтересует