Top.Mail.Ru

Большая Черемушкинская ул., д. 26, к. 4

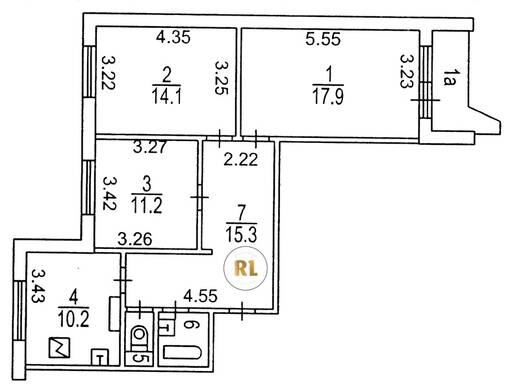
База каталог, Кол-во подъездов: 3, Отсутствует, П-44-1/17, Москва, Академический, Площадь парковки: 0, Пассажирский лифт: 3, От метро: 1160, Юго-Западный, нет, Наименьшее кол-во этажей: 17, Наибольшее кол-во этажей: 17, Академическая, Кол-во помещений: 192, Кол-во нежилых помещений: 0, Год ввода в эксплуатацию: 1993, 3-комн, Кол-во жилых помещений: 192, D, дом 26, корпус 4, нет, да, да, да, да, нет, Отсутствует, Грузовых лифтов: 3, Год постройки: 1993, Большая Черемушкинская улица, 37.584173, 55.681468
Свяжитесь со мной на счет цены
10 дн.
T55S681468L37S584173T

На карте


Условия сделки

Источник


Старт продаж

Возможно заинтересует