Top.Mail.Ru

улица Кедрова, д. 22

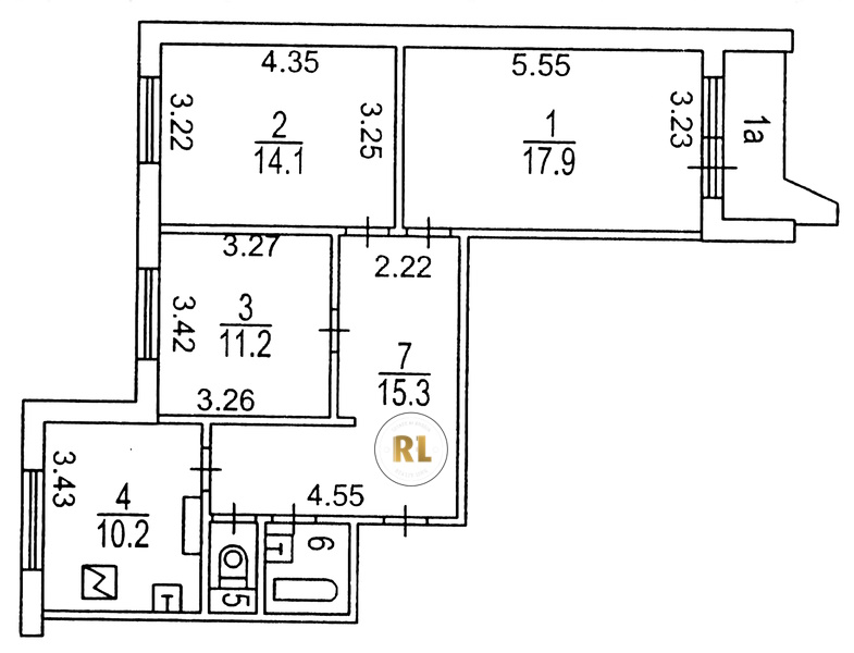
База каталог, Кол-во подъездов: 5, Отсутствует, П-44, Москва, Академический, Площадь парковки: 0, Пассажирский лифт: 5, От метро: 850, Юго-Западный, нет, Наименьшее кол-во этажей: 8, Наибольшее кол-во этажей: 10, Академическая, Кол-во помещений: 165, Кол-во нежилых помещений: 0, Год ввода в эксплуатацию: 1998, 3-комн, Кол-во жилых помещений: 165, D, дом 22, нет, да, да, да, да, да, Имеется, Грузовых лифтов: 5, Год постройки: 1998, улица Кедрова, 37.575432, 55.681575
Свяжитесь со мной на счет цены
10 дн.
T55S681575L37S575432T

На карте


Условия сделки

Источник


Старт продаж

Возможно заинтересует