Top.Mail.Ru

улица Пржевальского, д. 2

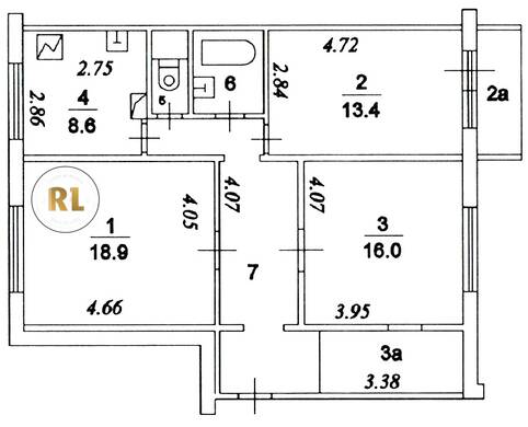
База каталог, Кол-во подъездов: 5, Отсутствует, П-46M, Москва, Очаково-Матвеевское, Площадь парковки: 0, Пассажирский лифт: 5, От метро: 1380, Западный, нет, Наименьшее кол-во этажей: 12, Наибольшее кол-во этажей: 14, Озёрная, Кол-во помещений: 237, Кол-во нежилых помещений: 7, Год ввода в эксплуатацию: 2003, 3-комн, Кол-во жилых помещений: 230, Не присвоен, дом 2, нет, да, да, да, да, нет, Имеется, Грузовых лифтов: 5, Год постройки: 2002, улица Пржевальского, 37.451689, 55.681849
Свяжитесь со мной на счет цены
10 дн.
T55S681849L37S451689T

На карте


Условия сделки

Источник


Старт продаж

Возможно заинтересует