Top.Mail.Ru

1-я Вольская ул., д. 16

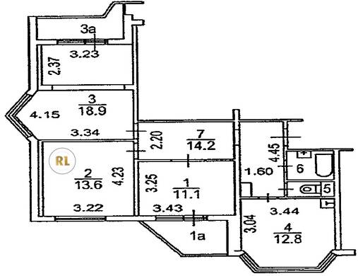
База каталог, Кол-во подъездов: 3, Отсутствует, П-44T, Москва, Некрасовка, Площадь парковки: 0, Пассажирский лифт: 3, От метро: 3200, Юго-Восточный, нет, Наименьшее кол-во этажей: 1, Наибольшее кол-во этажей: 17, Некрасовка, Кол-во помещений: 199, Кол-во нежилых помещений: 5, Год ввода в эксплуатацию: 2007, 3-комн, Кол-во жилых помещений: 194, В, дом 16, нет, нет, нет, нет, нет, нет, Отсутствует, Грузовых лифтов: 3, Год постройки: 2007, 1-я Вольская улица, 37.921266, 55.682184
15 700 000 Р
10 дн.
T55S682184L37S921266T
+

На карте


Условия сделки

Источник


Старт продаж