Top.Mail.Ru

Привольная ул., д. 61, к. 1

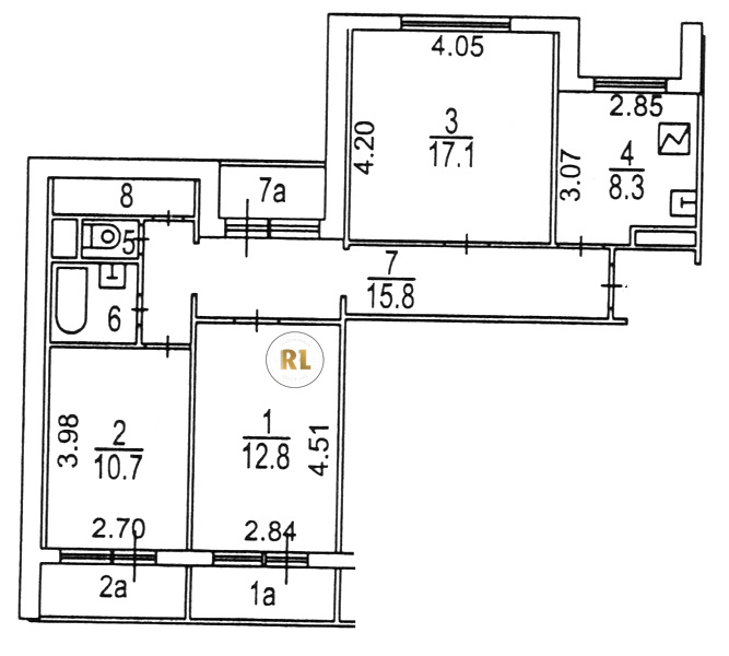
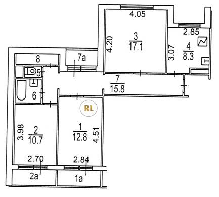
База каталог, Кол-во подъездов: 11, Имеется, П-55, Москва, Выхино-Жулебино, Площадь парковки: 0, Пассажирский лифт: 11, От метро: 700, Юго-Восточный, нет, Наименьшее кол-во этажей: 1, Наибольшее кол-во этажей: 14, Жулебино, Кол-во помещений: 262, Кол-во нежилых помещений: 16, Год ввода в эксплуатацию: 1998, 3-комн, Кол-во жилых помещений: 246, С, дом 61, корпус 1, нет, да, да, да, да, да, Имеется, Грузовых лифтов: 11, Год постройки: 1998, Привольная улица, 37.845780, 55.682539
Свяжитесь со мной на счет цены
10 дн.
T55S682539L37S845780T

На карте


Условия сделки

Источник


Старт продаж

Возможно заинтересует