Top.Mail.Ru

Большая Черемушкинская ул., д. 20, к. 4

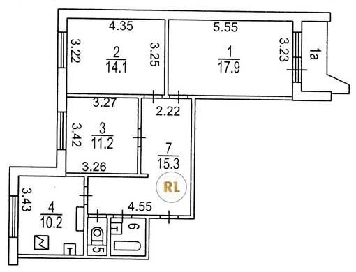
База каталог, Кол-во подъездов: 7, Отсутствует, П-44, Москва, Академический, Площадь парковки: 0, Пассажирский лифт: 7, От метро: 1000, Юго-Западный, нет, Наименьшее кол-во этажей: 17, Наибольшее кол-во этажей: 17, Академическая, Кол-во помещений: 380, Кол-во нежилых помещений: 0, Год ввода в эксплуатацию: 1999, 3-комн, Кол-во жилых помещений: 380, E, дом 20, корпус 4, нет, да, да, да, да, да, Имеется, Грузовых лифтов: 7, Год постройки: 1999, Большая Черемушкинская улица, 37.584829, 55.682727
Свяжитесь со мной на счет цены
10 дн.
T55S682727L37S584829T

На карте


Условия сделки

Источник


Старт продаж

Возможно заинтересует