Top.Mail.Ru

Севастопольский проспект, д. 15, к. 1

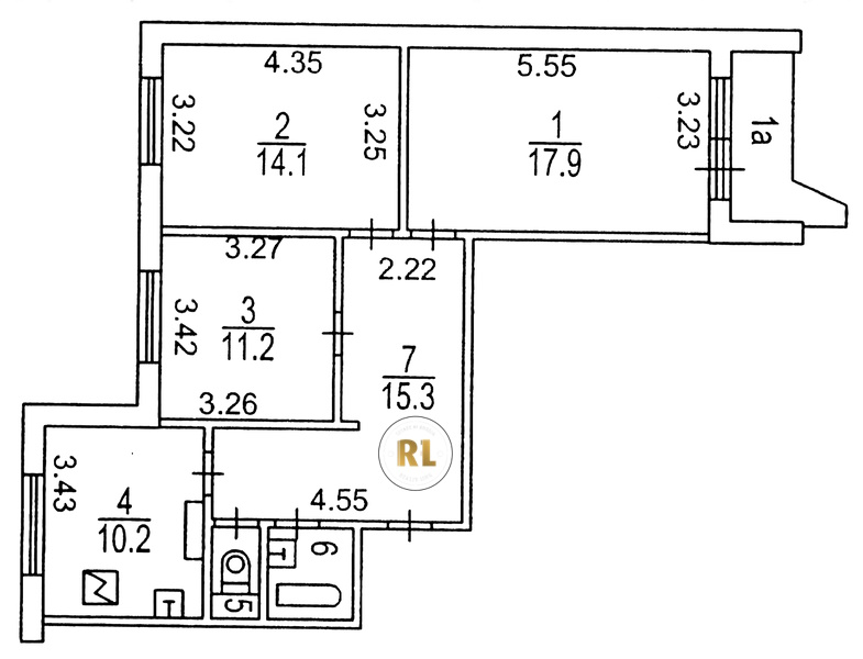
База каталог, Кол-во помещений: 127, П-44/16, Москва, Котловка, Площадь парковки: 0, Пассажирский лифт: 2, От метро: 1010, Юго-Западный, нет, Наименьшее кол-во этажей: 16, Наибольшее кол-во этажей: 0, Крымская, Кол-во подъездов: 1, Год ввода в эксплуатацию: 1983, Кол-во нежилых помещений: 1, 3-комн, Кол-во жилых помещений: 126, дом 15, корпус 1, нет, да, да, да, да, да, Грузовых лифтов: 0, Год постройки: 1982, Севастопольский проспект, 37.600307, 55.683346
Свяжитесь со мной на счет цены
10 дн.
T55S683346L37S600307T

На карте


Условия сделки

Источник


Старт продаж

Возможно заинтересует