Top.Mail.Ru

Новочеремушкинская ул., д. 16

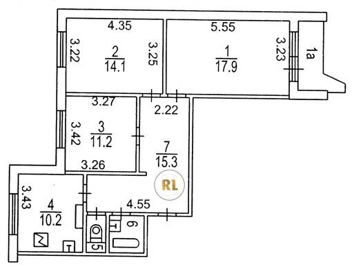
База каталог, Кол-во подъездов: 5, Отсутствует, П-44, Москва, Академический, Площадь парковки: 0, Пассажирский лифт: 5, От метро: 810, Юго-Западный, нет, Наименьшее кол-во этажей: 14, Наибольшее кол-во этажей: 17, Академическая, Кол-во помещений: 282, Кол-во нежилых помещений: 0, Год ввода в эксплуатацию: 1997, 3-комн, Кол-во жилых помещений: 282, В, дом 16, нет, да, да, да, да, да, Отсутствует, Грузовых лифтов: 5, Год постройки: 1997, Новочеремушкинская улица, 37.580023, 55.683351
Свяжитесь со мной на счет цены
10 дн.
T55S683351L37S580023T

На карте


Условия сделки

Источник


Старт продаж

Возможно заинтересует