Top.Mail.Ru

Коломенская ул., д. 5

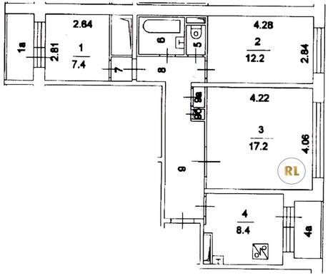
База каталог, Кол-во подъездов: 15, Отсутствует, П-30, Москва, Нагатинский Затон, Площадь парковки: 0, Пассажирский лифт: 30, От метро: 111, Южный, нет, Наименьшее кол-во этажей: 12, Наибольшее кол-во этажей: 12, Нагатинский Затон, Кол-во помещений: 716, Кол-во нежилых помещений: 12, Год ввода в эксплуатацию: 1982, 3-комн, Кол-во жилых помещений: 704, В, дом 5, да, да, да, да, да, да, Имеется, Грузовых лифтов: 0, Год постройки: 1982, Коломенская улица, 37.704502, 55.683483
Свяжитесь со мной на счет цены
10 дн.
T55S683483L37S704502T

На карте


Условия сделки

Источник


Старт продаж

Возможно заинтересует