Top.Mail.Ru

Люблинская ул., д. 61

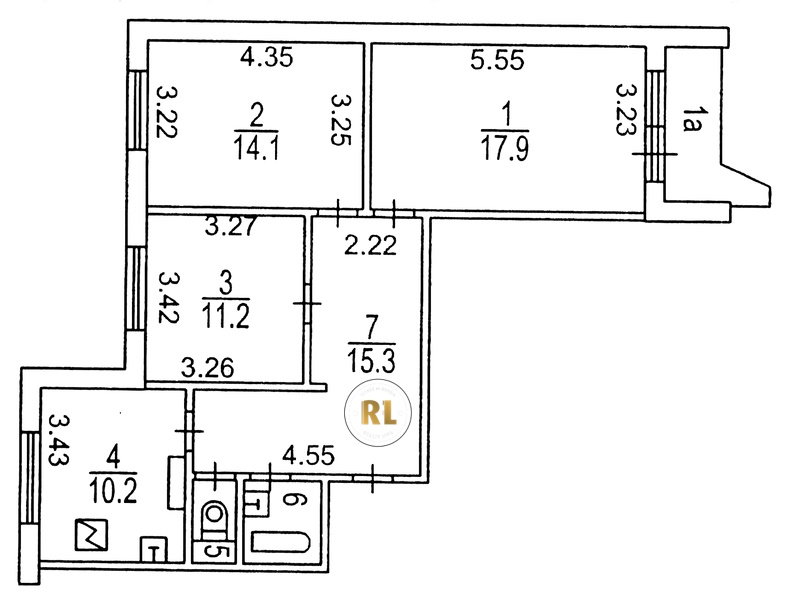
База каталог, Кол-во помещений: 319, Имеется, П-44, Москва, Люблино, Площадь парковки: 0, Пассажирский лифт: 5, От метро: 1460, Юго-Восточный, нет, Наименьшее кол-во этажей: 1, Наибольшее кол-во этажей: 17, Печатники, Кол-во подъездов: 5, Год ввода в эксплуатацию: 1988, Кол-во нежилых помещений: 0, 3-комн, Кол-во жилых помещений: 319, дом 61, нет, да, да, да, да, нет, Имеется, Грузовых лифтов: 5, Год постройки: 1988, Люблинская улица, 37.738450, 55.684117
Свяжитесь со мной на счет цены
10 дн.
T55S684117L37S738450T

На карте


Условия сделки

Источник


Старт продаж

Возможно заинтересует