Top.Mail.Ru

2-я Вольская ул., д. 6

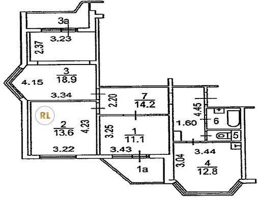
База каталог, Кол-во подъездов: 5, Отсутствует, П-44T, Москва, Некрасовка, Площадь парковки: 0, Пассажирский лифт: 5, От метро: 2800, Юго-Восточный, нет, Наименьшее кол-во этажей: 1, Наибольшее кол-во этажей: 17, Некрасовка, Кол-во помещений: 329, Кол-во нежилых помещений: 5, Год ввода в эксплуатацию: 2009, 3-комн, Кол-во жилых помещений: 324, Не присвоен, дом 6, нет, да, нет, нет, нет, нет, Отсутствует, Грузовых лифтов: 5, Год постройки: 2009, 2-я Вольская улица, 37.921005, 55.685234
Свяжитесь со мной на счет цены
10 дн.
T55S685234L37S921005T

На карте


Условия сделки

Источник


Старт продаж

Возможно заинтересует