Top.Mail.Ru

улица Лобачевского, д. 100, к. 2

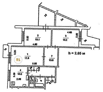
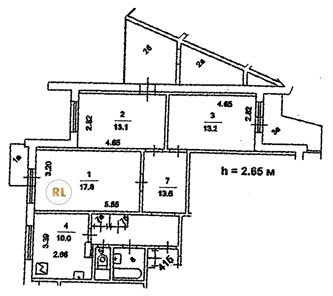
База каталог, Кол-во подъездов: 4, Отсутствует, П-3/16, Москва, Раменки, Площадь парковки: 0, Пассажирский лифт: 4, От метро: 500, Западный, нет, Наименьшее кол-во этажей: 16, Наибольшее кол-во этажей: 16, Мичуринский проспект, Кол-во помещений: 254, Кол-во нежилых помещений: 0, Год ввода в эксплуатацию: 1981, 3-комн, Кол-во жилых помещений: 254, С, дом 100, корпус 2, да, да, да, да, да, да, Отсутствует, Грузовых лифтов: 4, Год постройки: 1981, улица Лобачевского, 37.481046, 55.685954
Свяжитесь со мной на счет цены
10 дн.
T55S685954L37S481046T

На карте


Условия сделки

Источник


Старт продаж

Возможно заинтересует