Top.Mail.Ru

улица Винокурова, д. 16

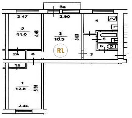
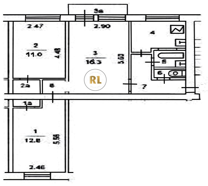
База каталог, Кол-во подъездов: 4, Отсутствует, I-511, Москва, Академический, Площадь парковки: 0, Пассажирский лифт: 0, От метро: 1210, Юго-Западный, нет, Наименьшее кол-во этажей: 5, Наибольшее кол-во этажей: 5, Крымская, Кол-во помещений: 80, Кол-во нежилых помещений: 0, Год ввода в эксплуатацию: 1963, 3-комн, Кол-во жилых помещений: 80, D, дом 16, нет, да, да, да, да, нет, Отсутствует, Грузовых лифтов: 0, Год постройки: 1963, улица Винокурова, 37.592114, 55.686066
Свяжитесь со мной на счет цены
10 дн.
T55S686066L37S592114T

На карте


Условия сделки

Источник


Старт продаж

Возможно заинтересует