Top.Mail.Ru

улица Удальцова, д. 89, к. 3

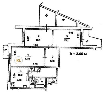
База каталог, Кол-во подъездов: 4, П-3/16, Москва, Раменки, Площадь парковки: 0, Пассажирский лифт: 4, От метро: 330, Западный, нет, Наименьшее кол-во этажей: 16, Наибольшее кол-во этажей: 16, Мичуринский проспект, Кол-во помещений: 252, Кол-во нежилых помещений: 0, Год ввода в эксплуатацию: 1981, 3-комн, Кол-во жилых помещений: 252, С, дом 89, корпус 3, да, да, да, да, да, да, Отсутствует, Грузовых лифтов: 4, Год постройки: 1981, улица Удальцова, 37.483984, 55.686183
Свяжитесь со мной на счет цены
10 дн.
T55S686183L37S483984T

На карте


Условия сделки

Источник


Старт продаж

Возможно заинтересует