Top.Mail.Ru

Привольная ул., д. 49, к. 1

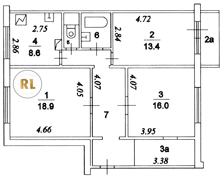
База каталог, Кол-во подъездов: 6, Имеется, П-46M, Москва, Выхино-Жулебино, Площадь парковки: 0, Пассажирский лифт: 6, От метро: 840, Юго-Восточный, нет, Наименьшее кол-во этажей: 1, Наибольшее кол-во этажей: 7, Жулебино, Кол-во помещений: 81, Кол-во нежилых помещений: 1, Год ввода в эксплуатацию: 1996, 3-комн, Кол-во жилых помещений: 80, Не присвоен, дом 49, корпус 1, нет, да, да, да, да, да, Имеется, Грузовых лифтов: 0, Год постройки: 1996, Привольная улица, 37.843849, 55.686619
Свяжитесь со мной на счет цены
10 дн.
T55S686619L37S843849T

На карте


Условия сделки

Источник


Старт продаж

Возможно заинтересует