Top.Mail.Ru

Краснодонская ул., д. 2, к. 1

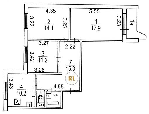
База каталог, Кол-во подъездов: 4, П-44, Москва, Люблино, Площадь парковки: 0, Пассажирский лифт: 4, От метро: 480, Юго-Восточный, нет, Наименьшее кол-во этажей: 1, Наибольшее кол-во этажей: 17, Волжская, Кол-во помещений: 264, Кол-во нежилых помещений: 5, Год ввода в эксплуатацию: 1988, 3-комн, Кол-во жилых помещений: 259, дом 2, корпус 1, да, да, да, да, да, да, Отсутствует, Грузовых лифтов: 4, Год постройки: 1988, Краснодонская улица, 37.752248, 55.686944
Свяжитесь со мной на счет цены
10 дн.
T55S686944L37S752248T

На карте


Условия сделки

Источник


Старт продаж

Возможно заинтересует