Top.Mail.Ru

Краснодонская ул., д. 2, к. 3

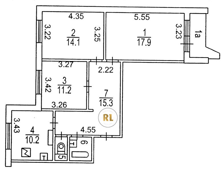
База каталог, Кол-во подъездов: 3, Отсутствует, П-44, Москва, Люблино, Пассажирский лифт: 3, От метро: 510, Юго-Восточный, да, Наименьшее кол-во этажей: 0, Наибольшее кол-во этажей: 17, Волжская, Кол-во помещений: 203, Кол-во нежилых помещений: 0, Год ввода в эксплуатацию: 1989, 3-комн, Кол-во жилых помещений: 203, дом 2, корпус 3, да, да, да, да, да, да, Имеется, Грузовых лифтов: 3, Год постройки: 1989, Краснодонская улица, 37.751071, 55.687259
Свяжитесь со мной на счет цены
10 дн.
T55S687259L37S751071T

На карте


Условия сделки

Источник


Старт продаж

Возможно заинтересует