Top.Mail.Ru

улица Раменки, д. 25, к. 3

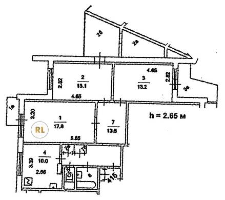
База каталог, Кол-во помещений: 272, Имеется, П-3/16, Москва, Раменки, Площадь парковки: 0, Пассажирский лифт: 4, От метро: 710, Западный, нет, Наименьшее кол-во этажей: 0, Наибольшее кол-во этажей: 17, Мичуринский проспект, Кол-во подъездов: 4, Год ввода в эксплуатацию: 1986, Кол-во нежилых помещений: 0, 3-комн, Кол-во жилых помещений: 272, дом 25, корпус 3, нет, да, да, да, да, да, Имеется, Грузовых лифтов: 4, Год постройки: 1986, улица Раменки, 37.494656, 55.687832
Свяжитесь со мной на счет цены
10 дн.
T55S687832L37S494656T

На карте


Условия сделки

Источник


Старт продаж

Возможно заинтересует