Top.Mail.Ru

Большая Черемушкинская ул., д. 6, к. 1

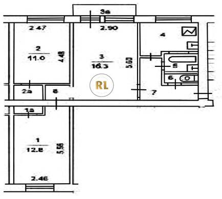
База каталог, Кол-во подъездов: 4, Отсутствует, I-511, Москва, Академический, Площадь парковки: 0, Пассажирский лифт: 0, От метро: 1030, Юго-Западный, нет, Наименьшее кол-во этажей: 5, Наибольшее кол-во этажей: 5, Крымская, Кол-во помещений: 67, Кол-во нежилых помещений: 0, Год ввода в эксплуатацию: 1959, 3-комн, Кол-во жилых помещений: 67, E, дом 6, корпус 1, нет, да, да, да, да, да, Отсутствует, Грузовых лифтов: 0, Год постройки: 1959, Большая Черемушкинская улица, 37.593641, 55.687842
Свяжитесь со мной на счет цены
10 дн.
T55S687842L37S593641T

На карте


Условия сделки

Источник


Старт продаж

Возможно заинтересует