Top.Mail.Ru

Большая Черемушкинская ул., д. 4

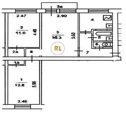
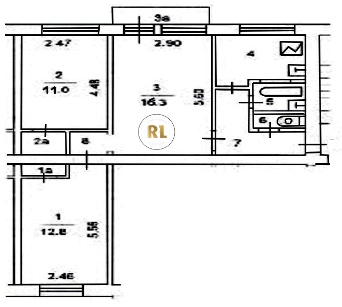
База каталог, Кол-во подъездов: 4, Отсутствует, I-511, Москва, Академический, Площадь парковки: 0, Пассажирский лифт: 0, От метро: 890, Юго-Западный, нет, Наименьшее кол-во этажей: 5, Наибольшее кол-во этажей: 5, Крымская, Кол-во помещений: 76, Кол-во нежилых помещений: 0, Год ввода в эксплуатацию: 1959, 3-комн, Кол-во жилых помещений: 76, E, дом 4, нет, да, да, да, да, да, Имеется, Грузовых лифтов: 0, Год постройки: 1959, Большая Черемушкинская улица, 37.595168, 55.688253
Свяжитесь со мной на счет цены
10 дн.
T55S688253L37S595168T

На карте


Условия сделки

Источник


Старт продаж

Возможно заинтересует