Top.Mail.Ru

улица Винокурова, д. 7/5, к. 1

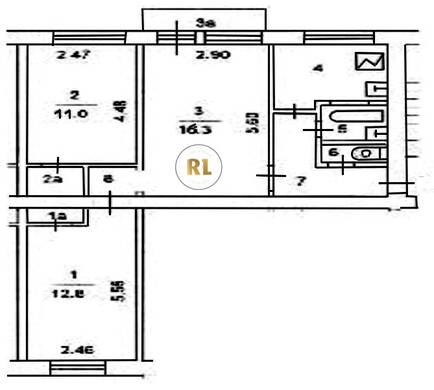
База каталог, Кол-во подъездов: 4, Отсутствует, I-511, Москва, Академический, Площадь парковки: 0, Пассажирский лифт: 0, От метро: 1030, Юго-Западный, нет, Наименьшее кол-во этажей: 5, Наибольшее кол-во этажей: 5, Академическая, Кол-во помещений: 76, Кол-во нежилых помещений: 0, Год ввода в эксплуатацию: 1960, 3-комн, Кол-во жилых помещений: 76, D, дом 7/5, корпус 1, нет, да, да, да, да, да, Отсутствует, Грузовых лифтов: 0, Год постройки: 1960, улица Винокурова, 37.587703, 55.688345
Свяжитесь со мной на счет цены
10 дн.
T55S688345L37S587703T

На карте


Условия сделки

Источник


Старт продаж

Возможно заинтересует