Top.Mail.Ru

Озерная ул., д. 2, к. 3

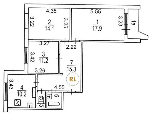
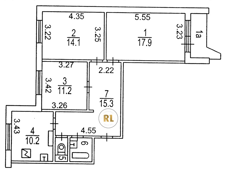
База каталог, Кол-во подъездов: 2, Имеется, П-44, Москва, Очаково-Матвеевское, Площадь парковки: 0, Пассажирский лифт: 2, От метро: 1070, Западный, нет, Наименьшее кол-во этажей: 17, Наибольшее кол-во этажей: 17, Аминьевская, Кол-во помещений: 132, Кол-во нежилых помещений: 4, Год ввода в эксплуатацию: 2011, 3-комн, Кол-во жилых помещений: 128, В, дом 2, корпус 3, нет, да, да, да, да, да, Имеется, Грузовых лифтов: 2, Год постройки: 2011, Озерная улица, 37.468398, 55.688558
Свяжитесь со мной на счет цены
10 дн.
T55S688558L37S468398T

На карте


Условия сделки

Источник


Старт продаж

Возможно заинтересует