Top.Mail.Ru

улица Винокурова, д. 7/5, к. 2

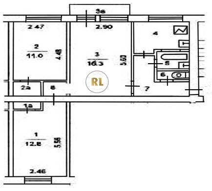
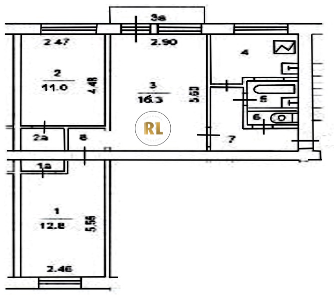
База каталог, Кол-во подъездов: 4, Отсутствует, I-511, Москва, Академический, Площадь парковки: 0, Пассажирский лифт: 0, От метро: 1120, Юго-Западный, нет, Наименьшее кол-во этажей: 5, Наибольшее кол-во этажей: 5, Академическая, Кол-во помещений: 80, Кол-во нежилых помещений: 0, Год ввода в эксплуатацию: 1960, 3-комн, Кол-во жилых помещений: 80, D, дом 7/5, корпус 2, нет, да, да, да, да, нет, Отсутствует, Грузовых лифтов: 0, Год постройки: 1960, улица Винокурова, 37.588745, 55.688598
Свяжитесь со мной на счет цены
10 дн.
T55S688598L37S588745T

На карте


Условия сделки

Источник


Старт продаж

Возможно заинтересует