Top.Mail.Ru

Жулебинский бульвар, д. 27

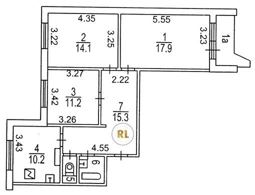
База каталог, Кол-во подъездов: 2, Имеется, П-44, Москва, Выхино-Жулебино, Площадь парковки: 0, Пассажирский лифт: 2, От метро: 540, Юго-Восточный, нет, Наименьшее кол-во этажей: 1, Наибольшее кол-во этажей: 10, Жулебино, Кол-во помещений: 74, Кол-во нежилых помещений: 2, Год ввода в эксплуатацию: 1995, 3-комн, Кол-во жилых помещений: 72, Не присвоен, дом 27, да, да, да, да, да, да, Имеется, Грузовых лифтов: 2, Год постройки: 1995, Жулебинский бульвар, 37.851934, 55.688801
Свяжитесь со мной на счет цены
10 дн.
T55S688801L37S851934T

На карте


Условия сделки

Источник


Старт продаж

Возможно заинтересует