Top.Mail.Ru

улица Раменки, д. 31

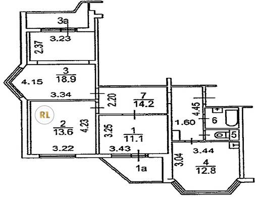
База каталог, Кол-во подъездов: 4, П-44T, Москва, Раменки, Площадь парковки: 0, Пассажирский лифт: 4, От метро: 440, Западный, нет, Наименьшее кол-во этажей: 17, Наибольшее кол-во этажей: 17, Мичуринский проспект, Кол-во помещений: 0, Кол-во нежилых помещений: 0, Год ввода в эксплуатацию: 2001, 3-комн, Кол-во жилых помещений: 0, Не присвоен, дом 31, да, да, да, да, да, да, Грузовых лифтов: 4, Год постройки: 2001, улица Раменки, 37.490587, 55.689502
Свяжитесь со мной на счет цены
10 дн.
T55S689502L37S490587T

На карте


Условия сделки

Источник


Старт продаж

Возможно заинтересует