Top.Mail.Ru

улица Шверника, д. 18, к. 1

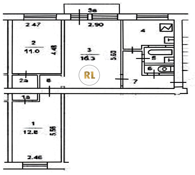
База каталог, Кол-во подъездов: 4, Имеется, I-511, Москва, Академический, Площадь парковки: 0, Пассажирский лифт: 0, От метро: 1020, Юго-Западный, нет, Наименьшее кол-во этажей: 5, Наибольшее кол-во этажей: 5, Крымская, Кол-во помещений: 80, Кол-во нежилых помещений: 0, Год ввода в эксплуатацию: 1959, 3-комн, Кол-во жилых помещений: 80, D, дом 18, корпус 1, нет, да, да, да, да, да, Отсутствует, Грузовых лифтов: 0, Год постройки: 1959, улица Шверника, 37.592653, 55.689796
Свяжитесь со мной на счет цены
10 дн.
T55S689796L37S592653T

На карте


Условия сделки

Источник


Старт продаж

Возможно заинтересует