Top.Mail.Ru

Привольная ул., д. 39, к. 3

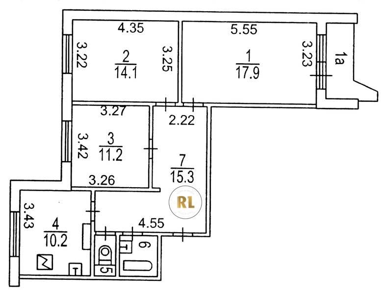
База каталог, Кол-во подъездов: 3, Имеется, П-44, Москва, Выхино-Жулебино, Пассажирский лифт: 3, От метро: 780, Юго-Восточный, да, Наименьшее кол-во этажей: 5, Наибольшее кол-во этажей: 5, Жулебино, Кол-во помещений: 34, Кол-во нежилых помещений: 1, Год ввода в эксплуатацию: 1995, 3-комн, Кол-во жилых помещений: 33, Не присвоен, дом 39, корпус 3, нет, да, да, да, да, да, Имеется, Грузовых лифтов: 0, Год постройки: 1995, Привольная улица, 37.851197, 55.689989
Свяжитесь со мной на счет цены
10 дн.
T55S689989L37S851197T

На карте


Условия сделки

Источник


Старт продаж

Возможно заинтересует